2-1 正面図の選び方 premium 視聴履歴 前の動画 次の動画 形状や機能から見た選び方 正面図には、部品の形状や機能を最も明瞭に表す面を選びます。これを元にして、平面図、側面図などを描きます。 ※テニスやバレーのネット張りの道具です。 断面図で表すことで、よりわかり易くなっています(2.5 断面の図示) 「良い例」 「良くない例」 破線は見にくいので、なるべく避けたほうが親切です。正面図の選び方が悪いと、図面が複雑になったり、かくれ線が多くなったりして、製図能率が落ち、読みにくくなりますから注意してください。 加工方法から見た選び方 製作図では、最も加工量の多い工程を基準として、できるだけその部品が加工されるときの状態と同じ向きに描くと、作業がやりやすくなり、図の見誤りも少なくなります。 このような円柱状の部品は、旋盤を使って加工します。 加工するときと同じように、中心線を水平にして描き ます。 φ150=「まるひゃくごじゅう」または「ふぁいひゃくごじゅう」丸い形状を表す記号。「150」は円の直径。 形状を表す記号 部品の形状を表す記号には、以下に示すようなものがあります。これらは寸法数字と共に使用して、形状を簡単に表し、図形を単純にわかりやすくする効果があります。 コメント 図形の表し方 2-1 正面図の選び方 2-2 平面図、側面図などの選び方 2-3 対称図形 2-4 局部投影図と補助投影図 2-5 断面の図示 2-6 特殊な図示法 2 練習問題 その1…
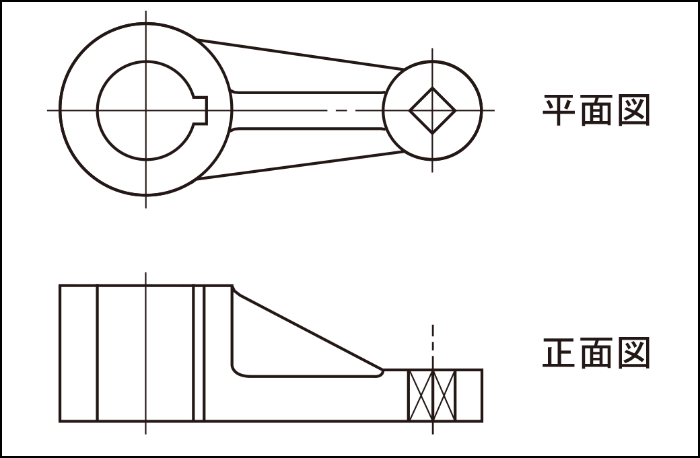
形状や機能から見た選び方
正面図には、部品の形状や機能を最も明瞭に表す面を選びます。これを元にして、平面図、側面図などを描きます。
※テニスやバレーのネット張りの道具です。
断面図で表すことで、よりわかり易くなっています(2.5 断面の図示)
「良い例」
「良くない例」
破線は見にくいので、なるべく避けたほうが親切です。正面図の選び方が悪いと、図面が複雑になったり、かくれ線が多くなったりして、製図能率が落ち、読みにくくなりますから注意してください。
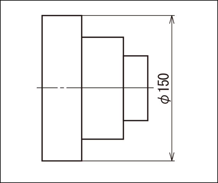
加工方法から見た選び方
製作図では、最も加工量の多い工程を基準として、できるだけその部品が加工されるときの状態と同じ向きに描くと、作業がやりやすくなり、図の見誤りも少なくなります。
このような円柱状の部品は、旋盤を使って加工します。
加工するときと同じように、中心線を水平にして描き ます。
φ150=「まるひゃくごじゅう」または「ふぁいひゃくごじゅう」丸い形状を表す記号。「150」は円の直径。
形状を表す記号
部品の形状を表す記号には、以下に示すようなものがあります。これらは寸法数字と共に使用して、形状を簡単に表し、図形を単純にわかりやすくする効果があります。
コメント